聯系我們
咨詢熱線:
13176718765
座機:0536-3729555
郵箱:wfthzg@126.com
地址:山東省臨朐縣東城街道南二環3222號DJ型大傾角擋邊帶式輸送機
產品概述
一、概述:
該系列產品主要用于散狀物料的大傾角連續輸送,采用具有波狀擋邊和橫隔板的輸送帶。輸送傾角為0-90°(70°以下最好),其特點為:用一臺設備在狹小的空間可完成水平傾斜輸送,具有通用帶式輸送機水平或小傾角輸送可靠高、節能和斗式提升物料可靠經濟的優點。本系列產品廣泛用于煤炭、糧食、建材、化工、水電和冶金等部門,在環境溫度為-19℃-+40℃內輸送堆積密度為0.5-2.5t/m3的各種散裝物料,對于輸送有特殊要求的物料,如耐高溫或具有酸、堿性、油類物質、有機浴劑等成分的物料,須在訂貨時提出,采用相應材料的特殊擋邊輸送帶。
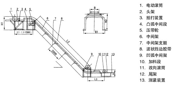
二、外形圖:
技術參數
| 帶寬B | 400 | 500 | 600 | 800 | 1000 | 1200 | 1400 | ||||||||
| 擋邊高H | 60 | 80 | 80 | 120 | 120 | 160 | 160 | 200 | 160 | 240 | 200 | 300 | 240 | 400 | |
| 最小橫隔板間距 | 100 | 120 | 120 | 160 | 160 | 200 | 200 | 250 | 200 | 280 | 250 | 350 | 280 | 400 | |
|
輸送量 (原煤、帶速1m/s) M3/h |
35° | 28 | 36 | 50 | 71 | 104 | 120 | 157 | 195 | 216 | 327 | 331 | 466 | 500 | 794 |
| 45° | 19 | 25 | 33 | 57 | 83 | 97 | 127 | 157 | 175 | 271 | 267 | 384 | 414 | 680 | |
| 60° | 15 | 19 | 23 | 40 | 58 | 59 | 90 | 112 | 124 | 197 | 190 | 278 | 302 | 524 | |
| 90° | 9 | 11 | 15 | 21 | 31 | 37 | 48 | 60 | 66 | 106 | 102 | 149 | 162 | 281 | |
| 外型尺寸 | 頭輪帶面高H1 | 1200 | 1350 | 1615 | 1815 | 2000,2200 | 2300,2525 | 2525,2700 | |||||||
| 尾輪帶面高H2 | 690 | 800 | 950 | 1115 | 1250,1400 | 1600,1700 | 1600,1700 | ||||||||
| 中間段帶面高H3 | 700 | 800 | 850 | 1115 | 850,1200 | 1400,1500 | 1600,1700 | ||||||||
| 中間段地腳高B1 | 580 | 850 | 1020 | 1220 | 1440 | 1690 | 1890 | ||||||||
注:本表中輸送量按最小橫隔板間距計算,帶速增減,輸送量成倍增減,其他物料可參見此表確定。
| 粒度mm | ≤100mm | ≤160 | ≤250mm | ||
| 速度 m/s | 擋邊高≤120mm | 傾角≤30° | 2 | 1.6 | |
| 傾角≤角60° | 1.6 | 1.25 | |||
| 擋邊高≤240mm | 傾角≤30° | 2.5 | 2 | 1.6 | |
| 傾角≤60° | 1.6 | 1.6 | 1.0 | ||



